太田3 中古戸建

5,950万円

大阪府茨木市太田3丁目

東海道本線「摂津富田」駅徒歩28分

価格
5,950万円
間取り/建物面積
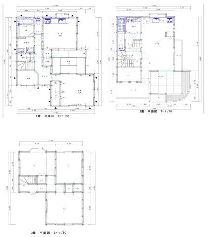
7LDK/159.07㎡
所在地
大阪府茨木市太田3丁目
築年
1999年12月(築26年)
駐車
-
交通

東海道本線摂津富田」駅 徒歩28分

太田3 中古戸建の基本情報

物件名
太田3 中古戸建
価格
5,950万円
建物面積
159.07㎡
土地面積
36.5坪(120.69㎡)
築年月
1999年12月(築26年)
総戸数
-
所在地
大阪府茨木市太田3丁目
交通

東海道本線摂津富田」駅 徒歩28分

太田3 中古戸建の詳細情報

設備条件
  • 閑静な住宅地
設備(その他)
    -
駐車場/月額
-/-
土地権利
所有権
国土法届出
不要
用途地域
-
取引態様
仲介
引渡し
相談

太田3 中古戸建で募集中の物件

  1. 48.11坪 (159.07㎡)

    5,950万円(123.67万円/坪)

太田3 中古戸建

お気軽にお問い合わせください

LINEからお問い合わせ 無料お問い合わせ

ステラ☆ホーム

06-6195-5955

10:00-19:00

(休:なし)