新北野3 新築戸建

4,380万円

大阪府大阪市淀川区新北野3丁目

東海道本線「塚本」駅徒歩9分

価格
4,380万円
間取り
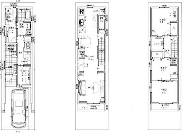
3LDK
土地面積
65.25㎡
所在地
大阪府大阪市淀川区新北野3丁目
交通

東海道本線塚本」駅 徒歩9分

建物面積
121.07㎡
築年月
2025年8月(新築)

物件の特徴

  • バストイレ別

  • カウンターキッチン

セールスポイント

■設備充実
■新築
■収納豊富
■ガレージ付き

基本情報

販売戸数
-
総戸数
-
間取り / 詳細
3LDK
向き
-
建物面積(坪数)
121.07㎡(36.62坪)
土地面積(坪数)
65.25㎡(19.73坪)
建ぺい率 /
容積率
-/-
築年月
2025年8月(新築)
土地権利
所有権
土地
(敷金 / 保証金)
- / -
建物構造
木造 / 3階建
傾斜地部分面積
-
路地状敷地
-
私道負担面積
-
セットバック
記載なし
高圧線下面積
-
施工会社
-
用途地域
-
地目 / 地勢
- / -
接道状況
-
国土法届出要否
不要
都市計画
-
総区画数 /
販売区画数
-/-
現況
完成済み
その他
法令上の制限
-
取引態様
仲介
引渡し
相談
取引条件の
有効期限
2026年02月01日

設備条件

設備条件
  • クリニック向け / ファミリー向け / フローリング / 食器洗い乾燥機 / システムキッチン / カウンターキッチン / バス・トイレ別 / 住戸内覧可能
設備(その他)
    -

その他

物件番号
97777272
管理コード
-
建築確認番号
-
情報更新日
2026年01月18日
次回更新予定日
2026年02月01日
取扱会社
  • ステラ☆ホーム
  • 大阪府大阪市東淀川区南江口2丁目7番19号 1階
  • TEL:06-6195-5955
  • 大阪府知事 (2) 第61970号

支払いシミュレーション

月々の支払額
9.6
購入希望物件価格
万円
頭金
万円
金利
%
返済額(ボーナス1回分)
万円
返済期間

※ボーナスは自動で年2回分で計算されます。

近隣の物件

  1. 加島1戸建

    大阪市淀川区加島1丁目

    3LDK (99.90㎡)

    4,580万円

  2. 三津屋中2  中古戸建

    大阪市淀川区三津屋中2丁目

    4LDK (106.96㎡)

    4,580万円

  3. 加島2 中古戸建

    大阪市淀川区加島2丁目

    3DK (64.04㎡)

    1,580万円

  4. 野中南1 中古戸建

    大阪市淀川区野中南1丁目

    6LDK (136.08㎡)

    4,299万円

新北野3 新築戸建

新北野3 新築戸建

4,380万円

-

3LDK(121.07㎡)

お気軽にお問い合わせください

LINEからお問い合わせ 無料お問い合わせ

ステラ☆ホーム

06-6195-5955

10:00-19:00

(休:なし)