大道南1 新築戸建

3,880万円

大阪府大阪市東淀川区大道南1丁目

地下鉄今里筋線「だいどう豊里」駅徒歩10分

価格
3,880万円
間取り
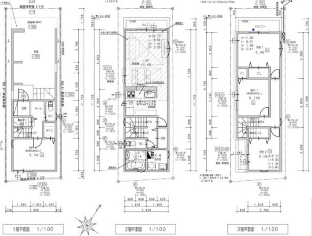
4LDK
土地面積
64.39㎡
所在地
大阪府大阪市東淀川区大道南1丁目
交通

地下鉄今里筋線だいどう豊里」駅 徒歩10分

建物面積
125.88㎡
築年月
2025年8月(新築)

物件の特徴

  • バストイレ別

  • カウンターキッチン

セールスポイント

■新築戸建
■床暖房付き
■陽当た良好
■収納豊富

基本情報

販売戸数
-
総戸数
-
間取り / 詳細
4LDK
向き
-
建物面積(坪数)
125.88㎡(38.07坪)
土地面積(坪数)
64.39㎡(19.47坪)
建ぺい率 /
容積率
-/-
築年月
2025年8月(新築)
土地権利
所有権
土地
(敷金 / 保証金)
- / -
建物構造
木造 / 3階建
傾斜地部分面積
-
路地状敷地
-
私道負担面積
-
セットバック
記載なし
高圧線下面積
-
施工会社
-
用途地域
-
地目 / 地勢
- / -
接道状況
-
国土法届出要否
不要
都市計画
-
総区画数 /
販売区画数
-/-
現況
完成済み
その他
法令上の制限
-
取引態様
仲介
引渡し
相談
取引条件の
有効期限
2026年01月31日

設備条件

設備条件
  • ファミリー向け / フローリング / システムキッチン / カウンターキッチン / バス・トイレ別 / 住戸内覧可能
設備(その他)
    -

その他

物件番号
98212457
管理コード
-
建築確認番号
-
情報更新日
2026年01月17日
次回更新予定日
2026年01月31日
取扱会社
  • ステラ☆ホーム
  • 大阪府大阪市東淀川区南江口2丁目7番19号 1階
  • TEL:06-6195-5955
  • 大阪府知事 (2) 第61970号

支払いシミュレーション

月々の支払額
9.6
購入希望物件価格
万円
頭金
万円
金利
%
返済額(ボーナス1回分)
万円
返済期間

※ボーナスは自動で年2回分で計算されます。

近隣の物件

  1. 豊新1 中古戸建

    大阪市東淀川区豊新1丁目

    6LDK (115.92㎡)

    3,300万円

  2. 井高野1 中古戸建

    大阪市東淀川区井高野1丁目

    3LDK (90.54㎡)

    2,480万円

  3. 東淡路4 中古戸建

    大阪市東淀川区東淡路4丁目

    4LDK (107.44㎡)

    3,700万円

  4. 瑞光2 中古戸建

    大阪市東淀川区瑞光2丁目

    5LDK (123.07㎡)

    3,380万円

大道南1 新築戸建

大道南1 新築戸建

3,880万円

-

4LDK(125.88㎡)

お気軽にお問い合わせください

LINEからお問い合わせ 無料お問い合わせ

ステラ☆ホーム

06-6195-5955

10:00-19:00

(休:なし)