ネオコーポ茨木

1,080万円

大阪府茨木市藤の里1丁目

大阪モノレール彩都「豊川」駅徒歩27分

東海道本線「茨木」駅バス13分「宿川原」停歩5分

大阪モノレール彩都「阪大病院前」駅徒歩46分

価格
1,080万円
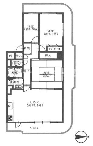
間取り
3LDK
向き
所在地
大阪府茨木市藤の里1丁目
交通

大阪モノレール彩都豊川」駅 徒歩27分

東海道本線茨木」駅 バス13分 「宿川原」 停歩5分

大阪モノレール彩都阪大病院前」駅 徒歩46分

専有面積
81.09㎡
築年月
1980年4月(築45年)

物件の特徴

  • バストイレ別

セールスポイント

■3面バルコニー
■広々81平米超
■閑静な住宅地
■角部屋

基本情報

管理費
6,560円
修繕積立金
9,520円
修繕積立基金
-
間取り / 詳細
3LDK
向き
専有面積
81.09㎡
バルコニー面積
33.73㎡
その他面積
-
-
-
所在階 / 階建て
8階 / 11階建
建物構造
鉄骨鉄筋コンクリート
築年月
1980年4月(築45年)
種別
中古マンション
駐車場 / 月額
空有 / -
土地権利
所有権
土地
(敷金 / 保証金)
- / -
国土法届出要否
不要
接道状況
-
用途地域
準工業
地勢
平坦
都市計画
市街化区域
現況
空家
引渡し
即時
取引態様
仲介
棟総戸数
209戸
管理形態
管理会社に全部委託
管理会社 /
管理組合有無
大和ライフネクスト / 有
取引条件の
有効期限
2026年03月23日

設備条件

設備条件
  • ファミリー向け / フローリング / システムキッチン / バス・トイレ別 / 住戸内覧可能
設備(その他)
    -

その他

物件番号
101403154
管理コード
-
建築確認番号
-
情報更新日
2026年03月09日
次回更新予定日
2026年03月23日
取扱会社
  • ステラ☆ホーム
  • 大阪府大阪市東淀川区南江口2丁目7番19号 1階
  • TEL:06-6195-5955
  • 大阪府知事 (2) 第61970号

ネオコーポ茨木の他の部屋

  1. 7階

    3LDK (81.09㎡)

    1,790万円(73万円/坪)

支払いシミュレーション

月々の支払額
購入希望物件価格
万円
頭金
万円
金利
%
返済額(ボーナス1回分)
万円
返済期間

※ボーナスは自動で年2回分で計算されます。

近隣の物件

  1. ライオンズマンション千里丘ガーデンシティ

    茨木市大正町

    2SLDK (62.83㎡)

    3,190万円

  2. メガロコープ茨木

    茨木市小川町

    3LDK (69.08㎡)

    2,190万円

  3. ジオ茨木学園町六番館

    茨木市学園町

    3LDK (75.75㎡)

    3,980万円

  4. 南春日丘プライムタウンB棟

    茨木市南春日丘1丁目

    2SLDK (2690.00㎡)

    2,590万円

よく見られている物件

  1. 千里ロイヤルマンション

    豊中市上新田2丁目

    2LDK (72.45㎡)

    2,260万円

  2. ユニーブル高野台北

    吹田市山田西2丁目

    2LDK (177.27㎡)

    3,780万円

  3. 枚方ハイツ2号棟

    枚方市高野道2丁目

    2SDK (53.51㎡)

    570万円

  4. アルス上新庄フォレストスクエア

    大阪市東淀川区小松4丁目

    4LDK (82.66㎡)

    4,198万円

ネオコーポ茨木

ネオコーポ茨木

1,080万円

6,560円

3LDK(81.09㎡)

お気軽にお問い合わせください

LINEからお問い合わせ 無料お問い合わせ

ステラ☆ホーム

06-6195-5955

10:00-19:00

(休:なし)